Project: Coconut Crab Studio
Architecture: Alexander Symes Architect
Builder, Client: Casa Adams Fine Wares
Landscape Architect: Jason Monaghan
Engineer: Cantilever Consulting Engineers
Location: Dulwich Hill, New South Wales, Australia
Area: 32 m2
Year: 2023
Photo Credits: Barton Taylor
Coconut Crab Studio by Alexander Symes Architect is an environmentally regenerative ceramic studio located in Sydney’s Inner West. Designed in collaboration with Casa Adams Fine Wares and landscape architect Jason Monaghan, the project offsets its embodied energy by an impressive 149 times over a 50-year assessment.
Purpose and Design Vision
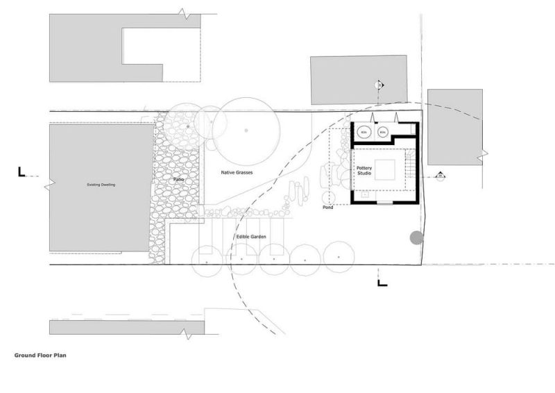
From the beginning, the project was rooted in Casa Adams’ mission to inspire curiosity about marine life through hand-painted porcelain plates. Consequently, the building’s façade carries its boldest artistic gesture: a giant tiled Coconut Crab that climbs across the wall. Positioned at the rear of the property, the studio faces the family home. Both dwellings share a thriving native landscape and an edible garden, which together foster biodiversity by supporting endemic frogs, birds, and insects.
Functionality and Flexibility
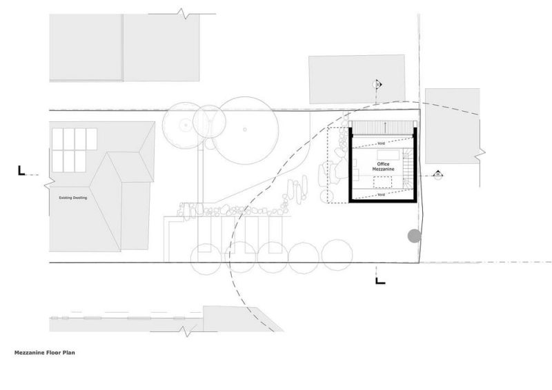
Importantly, Coconut Crab Studio is not a single-purpose space. Instead, it flexibly adapts to ceramic production, educational workshops, and business administration. Over time, it can even transform into a secondary dwelling if needed. Thanks to this versatility, the building ensures long-term relevance while also strengthening the owners’ creative practice.
Sustainable Strategies and Materials
Sustainability guided every design decision. For example, recycled materials such as reclaimed double-glazed doors and windows were integrated to minimize waste. In addition, the highly insulated and airtight building envelope—paired with a heat recovery ventilation (HRV) system—guarantees a comfortable and durable workspace year-round. As a result, the studio performs efficiently while reducing its environmental impact.
A Studio Rooted in Regeneration
Ultimately, Coconut Crab Studio by Alexander Symes Architect demonstrates that small-scale projects can achieve extraordinary outcomes. By combining artistic vision, ecological restoration, and circular material use, the project creates a space that is both inspiring and responsible. In the end, Coconut Crab Studio stands as a model of regenerative design, one that nurtures creativity while also giving back to the environment.














