Project: Holiday Farmhouse
Architecture: Raz Melamed
Location: Sharon, Israel
Photographer: Amit Geron
Holiday Farmhouse is a meeting point of the architecture of the past, designed for modern living, with touches of the future- that is the perfect description of this most recent project designed by architect Raz Melamed for his client who converted her childhood home into a family vacation complex.
The story of this land begins many years ago in a moshav (communal village) with a hut, a coop, and a barn, surrounded by trees planted by the family matriarch, the grandmother, who then was a little girl who lived with her parents in this pastoral environment.
The years passed, and then COVID took over, limiting movement and family gatherings. This was the impetus for this grandmother to make lemonade from the lemon and redesign this old area into the meeting ground for her family throughout the new COVID reality. As time went on, the lockdowns and restrictions eased, and today, the complex is used for a family retreat on the weekends.
When the architect took over the plot, it was clear that this was a project full of nostalgia, which fuelled the vision to plan this farmhouse as a haven to host and pamper the with a pool and a fun TV corner. In addition, the architect was asked to design an outdoor kitchen for entertaining by the pool, and in the end, he even created a campfire area for an Israeli experience to roast potatoes just like in the olden days.
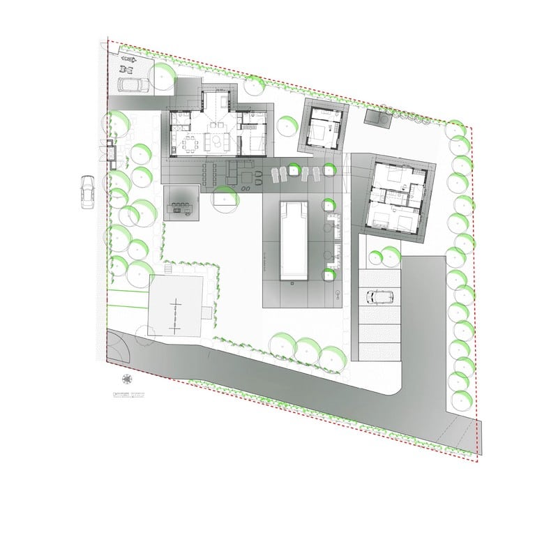
Throughout the design process, Melamed maintained the original geometry of the plot, while at the same time instilling contemporary visibility into the dilapidated foundations.
While the main house structure could have been renovated, the other buildings were fundamentally rotten, and had to be treated with care.
In the initial stage the contractor filled soil and created a uniform height to create harmony between the various structures. Later, the old roofs were dismantled and reinforced with constructive wooden beams, painted white to create lightness in the space, just like all the walls.
Sloping roofs were spread over them, with the traditional red tiles being replaced by concrete tiles in gray and modern colors for each of the houses. The design of the Holiday Farmhouse complex allows privacy for each of the guests, and at the same time creates a sense of togetherness thanks to the fact that all the rooms overlook the central pool that unites them all.
The entrance gate leads to the main house on a path covered with concrete paths, which also pave the interior of the house. The entrance is under an arch, an architectural element that has been the hallmark of the house all these years, with the architect preserving the shape of the arch at the client’s request, giving it a contemporary interpretation by rendering it, painting it white, and matching it to a glass awning. In this way he created an entrance that walks you into the present by way of the past, both architecturally and metaphorically.
The main house contains a kitchen, living room, suite for grandparents, a guest bathroom, and a TV corner for grandchildren, with a neutral background of colors in white-black-gray shades is the backdrop for the family event. In contrast, joyful color was devoted to the grandchildren’s corner, and yellow and orange furniture brings joy and childhood memories.
The kitchen is minimal and functional, without any visible handles, and is built of white carpentry like the rest of the house. A white dining table lays in the center, surrounded by black and mocha chairs, which repeat the colorfulness of the living room armchairs. These armchairs are made of wood and have warm inserts, as well as the bright sofa, behind which is a white carpentry wall that hides the master suite. This carpentry also hides a service cabinet and jets for air conditioning.
The guests use a bathroom that also has a clean line: smoothed concrete creates a planter enclosed in glass embedded in the wall, along with white carpentry and sanitary fittings of the same color.
The Holiday Farmhouse is surrounded by window handles that have been expanded and clad in black aluminum in the spirit of the period in which they home was initially built. Beyond the windows is the outdoor kitchen which is made of metal covered with a concrete surface, which repeats the materiality of the flooring. Next to it, special treatment is given to the shape of the central tree, which is decorated with lighting and has been preserved, a reminder of the past, and to the roots that are planted in the ground, literally.
The path leading from it reaches the first guest room, which was redesigned from the original the chicken coop and converted into a guest suite. Adjacent to it is a building that contains two suites, which used to be a barn, with an adjoining parking lot that allows complete privacy for guests and guests.
A spice garden was planted next to it, with the pool surrounded by trees planted in flower beds that were cut in concrete according to the pool grid.
The airy outdoor furniture connects the past to the present and connects to Melamed’s architectural concept that emphasizes a clean line, and the use of materials in their natural form, to create a designed background for the new memories the family will create here over its three generations.
Rugs- Gan rugs
Sofa- MDT italia
Loveseats- knoll
Orange sofa- mutto
Yellow loveseat- poliform
Furniture- Knoll, living divani, gloster



